
Mr. Abu Bakr • 2022
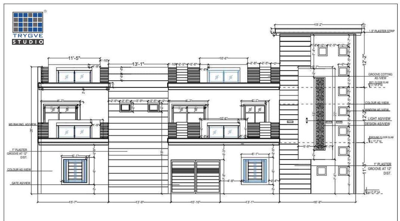
This private residence in Suratganj, Barabanki blends a clean contemporary elevation with playful brick levels, tones, and textures that bring depth and character to the façade. The exterior uses balanced proportions, recessed lighting, and slim railings to create a refined street presence, while the common living area prioritizes comfort with natural tones, layered lighting, and ample storage. The project scope covered architectural elevation, interior concept and detailing, and site coordination.





+Brick Levels
Depth and elevation play
+Open Plan
Living & circulation
+Custom Storage
Integrated in seating back